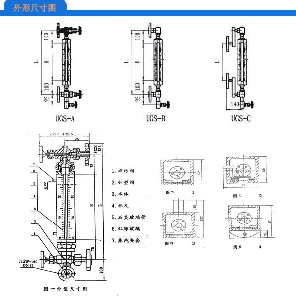
石英管液位计
- SR-UGS系列石英管液位计是利用自然光中在液体中折、反射的原理,借助红、绿滤色片,在测量时,使液相显示绿色,气相显示红色,由于液、气相显示反差大,指示鲜明清晰,所
- 咨询热线:0517-86913880
-
产品详情
SR-UGS系列石英管液位计是利用自然光中在液体中折、反射的原理,借助红、绿滤色片,在测量时,使液相显示绿色,气相显示红色,由于液、气相显示反差大,指示鲜明清晰,所以对远距离操作和也巡视更为有利,该液位计可广泛用于石油、化工、电力、冶金等行业,是目前国内外zui理想的直读式液位计之一。
双色石英液位计对于两种不同的液体混合时的测量,可选用三色界面石英液位计,三色界面石英液位计,是利用浮力与比重差的原理而设计的,石英管中的小浮子悬浮于两种介质的分界部分,由于浮子为黑色,上、下部分液体颜色有异,所以显示醒目,从而解决了一直困扰在石油蛤过程中两种混合介质界面分辨不清的难题。
产品特点:
液、气相显示清晰,无盲区、密封性好、耐高温、高压、防粘稠、重量轻、寿命长、无泄漏、结构简单、冲洗、维护方便。

技术参数:
1.特制的99.99%SiO2透明石英管,变形点1077℃,软化点1730℃,抗压强度1170Kgt/cm2膨胀系数5.5×102,经特殊工艺处理后具有耐高温、高压和优良的机械特性。
2.工作压力:1.6、2.5、6.4、10.0MPa
3.工作温度:-50~+550℃ PH:≤7(在低温低速环境下可≤10)
4.测量范围L:300、500、800、1100、1400、1700、2000、3000mm(测量范围按中心距而制定)
5.伴热蒸汽夹套:工作压力0.6MPa,接管尺寸G1/2″外螺纹
6.法兰连接尺寸:采用化工部zui新实施HG20592-20635-97法兰标准,法兰尺寸:DN20、PN2.5
7.用户采用其他法兰标准,请说明。
8.该液位计如无特殊说明,一般采用直通型式
9.如采用针型阀(即C型),钢球自动风痹压力:>0.2MPa
10.重量:10~30Kg
11.显示高度与测量范围关系(显示高度即标尺高度):
石英管液位计选型表
双色石英液位计对于两种不同的液体混合时的测量,可选用三色界面石英液位计,三色界面石英液位计,是利用浮力与比重差的原理而设计的,石英管中的小浮子悬浮于两种介质的分界部分,由于浮子为黑色,上、下部分液体颜色有异,所以显示醒目,从而解决了一直困扰在石油蛤过程中两种混合介质界面分辨不清的难题。
产品特点:
液、气相显示清晰,无盲区、密封性好、耐高温、高压、防粘稠、重量轻、寿命长、无泄漏、结构简单、冲洗、维护方便。

技术参数:
1.特制的99.99%SiO2透明石英管,变形点1077℃,软化点1730℃,抗压强度1170Kgt/cm2膨胀系数5.5×102,经特殊工艺处理后具有耐高温、高压和优良的机械特性。
2.工作压力:1.6、2.5、6.4、10.0MPa
3.工作温度:-50~+550℃ PH:≤7(在低温低速环境下可≤10)
4.测量范围L:300、500、800、1100、1400、1700、2000、3000mm(测量范围按中心距而制定)
5.伴热蒸汽夹套:工作压力0.6MPa,接管尺寸G1/2″外螺纹
6.法兰连接尺寸:采用化工部zui新实施HG20592-20635-97法兰标准,法兰尺寸:DN20、PN2.5
7.用户采用其他法兰标准,请说明。
8.该液位计如无特殊说明,一般采用直通型式
9.如采用针型阀(即C型),钢球自动风痹压力:>0.2MPa
10.重量:10~30Kg
11.显示高度与测量范围关系(显示高度即标尺高度):
石英管液位计选型表
| SR-UGS | 石英管液位计 |
| 代码 | 接液材质 |
|
D S |
单色 双色 |
| 代码 | 接液材质 |
|
C F L |
碳钢 304不锈钢 316不锈钢 |
| 代码 | 安装方式 |
|
D G |
法兰连接DN20、DN25(标注法兰尺寸) 螺纹连接G3/4” |
| 代码 | 压力等级 |
|
1 2 3 |
PN 1.O PN 4.0 PN 6.3 |
| 代码 | 附加功能(可多选) |
|
1 2 3 |
蒸汽伴热型 带照明装置 无盲区型 |
| 测量范围 | □□mm |






